CHF 1'590pro Monat

2 Nettomietzinse geschenkt, wenn Einzug vor Weihnachten

Wylerweg 3, 3324 Hindelbank, Switzerland
CHF 1'590
3.5
83 m2
Etage 2
Inserate-Ref.: 30047#02#420020

Alles über dieses Objekt

Sichern Sie sich zwei Gratismonate - wir schenken Ihnen die 1. & 2. Nettomiete (Nebenkosten sind ab Mietbeginn geschuldet, Mietvertragsunterzeichnung spätestens per 16.12.2025).


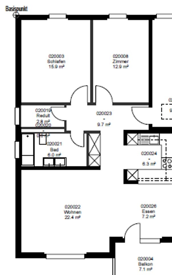
Per sofort oder nach Vereinbarung vermieten wir diese schöne und moderne 3.5-Zimmerwohnung in Hindelbank.

Die Wohnung bietet Ihnen folgende Annehmlichkeiten:

- Schlafzimmer mit Parkettboden
- Wohnzimmer, Küche und Nasszelle mit pflegeleichtem Plattenboden
- Küche mit Glaskeramikherd, Geschirrspüler, Backofen und viel Stauraum für Ihre Küchenutensilien
- Badezimmer mit WC, Lavabo, Spiegelschrank, Badewanne und Tageslicht
- Eingangsbereich mit Wandschrank
- Gemütlicher Balkon zum Verweilen
- Eigenes Kellerabteil

Die Haustierhaltung ist in dieser Liegenschaft erlaubt.

Nach Verfügbarkeit kann ein Einstellplatz für CHF 110.00 pro Monat dazu gemietet werden.

Umgebung:

- Ruhige Lage in ländlichem Wohnquartier
- Vielfältige Wander- und Bikewege direkt ab Haustür
- Naherholungsgebiete: Bärenried, Färnstu-Trail, Bantiger Aussichtsturm
- Schloss Burgdorf in ca. 15 Min. erreichbar
- Bahnhof Hindelbank in wenigen Minuten erreichbar
- Direkte ÖV-Verbindung nach Bern, Burgdorf und Langnau
- Anschluss an A1 (ca. 10 Min. mit dem Auto)
- Einkaufsmöglichkeiten im Dorfzentrum (Volg, Bäckerei, Metzgerei)
- Primarschule und Kindergarten im Ort

Bitte beachten Sie, dass die Bilder als Referenzbilder dienen und vom Original abweichen können.

Haben wir Ihr Interesse geweckt? Für einen Besichtigungstermin kontaktieren Sie uns bitte schriftlich über das Kontaktformular. Wir freuen uns auf Ihre Anfrage.

Anbieter

Für weitere Informationen zu diesem Objekt wenden Sie sich bitte an den Anbieter.
Privera AG
Mitglied seit Juni 2025Telefonnummer VerifiziertE-Mail Verifiziert

Standort ObjektWylerweg 3, 3324 Hindelbank, Switzerland

Besichtigung

Telefonnummer anzeigen

Eckdaten Objekt

Verfügbar ab:
Nach Vereinbarung
Objekttyp:
Wohnung
Zimmer:
3.5
Etage:
2
Wohnfläche:
83 m2
Anmelden
Neu bei immoswipe?
Jetzt registrieren und Serviced Apartments auf Zeit mit wenigen Klicks online mieten.
Account eröffnen