CHF 1'335pro Monat

Ein Traum in Herzen von Basel

Gerbergasse 26, 4001 Basel, Switzerland
CHF 1'335
1.5
35 m2
Etage 5
Inserate-Ref.: 19736#01#0502

Alles über dieses Objekt

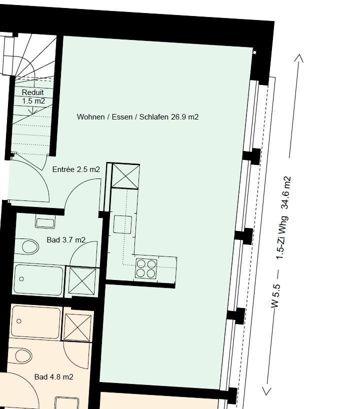
Per 01.12.2025 oder nach Vereinbarung vermieten wir diese schöne und moderne 1.5-Zimmerwohnung im Herzen der Stadt.

Die Wohnung bietet Ihnen folgende Annehmlichkeiten:
 
- Gesamter Wohnbereich mit Parkettboden
- Nasszelle mit pflegeleichtem, dunklem Plattenboden
- Offene Küche mit Glaskeramikherd, Geschirrspüler, Backofen und Stauraum für Ihre Küchenutensilien
- Badezimmer mit WC, Lavabo, Spiegelschrank und Dusche
- Eigener Waschturm (Waschmaschine und Trockner)
- Eigenes Kellerabteil
- Waschküche und Trockenraum zur Mitbenutzung
- Kein Balkon
 
Die Haustierhaltung ist in dieser Liegenschaft erlaubt.

Bitte beachten Sie, dass wir aktuell keinen freien Parkplatz oder Einstellhallenplatz in dieser Liegenschaft haben.

Umgebung:
 
- Die Wohnung liegt mitten in der Basler Altstadt, nur wenige Schritte von charmanten Gassen, Boutiquen und Restaurants entfernt.
- Der Rhein ist bequem zu Fuß erreichbar und lädt zu Spaziergängen, Jogging oder entspannten Momenten am Wasser ein.
- Öffentliche Verkehrsmittel sowie Einkaufsmöglichkeiten befinden sich in unmittelbarer Nähe und sorgen für eine hervorragende Anbindung und hohe Alltagskomfort.

Bitte beachten Sie, dass die Bilder als Referenzbilder dienen und vom Original abweichen können. Haben wir Ihr Interesse geweckt?

Anbieter

Für weitere Informationen zu diesem Objekt wenden Sie sich bitte an den Anbieter.
Privera AG
Mitglied seit Juni 2025Telefonnummer VerifiziertE-Mail Verifiziert

Standort ObjektGerbergasse 26, 4001 Basel, Switzerland

Besichtigung

Telefonnummer anzeigen

Eckdaten Objekt

Verfügbar ab:
Datum
Objekttyp:
Wohnung
Zimmer:
1.5
Etage:
5
Wohnfläche:
35 m2
Baujahr:
1948
Renovation:
2019

Merkmale und Ausstattung

Anmelden
Neu bei immoswipe?
Jetzt registrieren und Serviced Apartments auf Zeit mit wenigen Klicks online mieten.
Account eröffnen