CHF 0pro Monat

Auf der Suche nach einem Lagerraum? (ca. 15 - 29m2 )

Kasinostrasse 29, 5000 Aarau, Switzerland
Auf Anfrage
Etage UG
Inserate-Ref.: ##1702

Alles über dieses Objekt

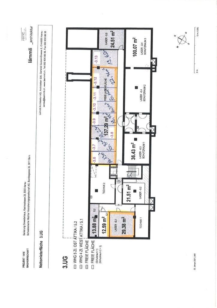
Mitten im Zentrum von Aarau und nur fünf Gehminuten vom Bahnhof entfernt, vermieten wir per sofort oder nach Vereinbarung diverse Lagerräume ab ca. 15 bis 29 m2 im 3. Untergeschoss.

Die Lagerräume sind mit einem Lift erschlossen.

Verfügbare Lagerräume 15 m2 / 16 m2 / 18 m2 / 29 m2
-> Preise auf Anfrage.

Haben wir Ihr Interesse geweckt? Gerne zeigen wir Ihnen die Lagerfläche vor Ort.

Anbieter

Für weitere Informationen zu diesem Objekt wenden Sie sich bitte an den Anbieter.
Vermarktung
Privera AG
Mitglied seit Juni 2025Telefonnummer VerifiziertE-Mail Verifiziert

Standort ObjektKasinostrasse 29, 5000 Aarau, Switzerland

Besichtigung

Telefonnummer anzeigen

Eckdaten Objekt

Verfügbar ab:
Nach Vereinbarung
Objekttyp:
Lagerraum
Etage:
UG
Baujahr:
1966
Anmelden
Neu bei immoswipe?
Jetzt registrieren und Serviced Apartments auf Zeit mit wenigen Klicks online mieten.
Account eröffnen